To the top of the document
Aveo
To Previous PageTo Next Page
GMDE Start PageLoad static TOCLoad dynamic TOCHelp?



21. POWER WINDOW CIRCUIT

1) ONLY FRONT POWER WINDOW CIRCUIT

S6B15052.png
Display graphicTranslations of text in graphics


a. CONNECTOR INFORMATION

CONNECTOR NO
(PIN NO, COLOR)
CONNECTING WIRING HARNESSCONNECTOR POSITION
C102 (32 Pin, Gray)Front - Engine Fuse BlockEngine Fuse Block
C203 (18 Pin, White)I.P - I.P Fuse BlockI.P Fuse Block
C211 (15 Pin, Yellow)Front - FloorUnder Left A Pillar
C351 (29 Pin, White)Floor - Front Left DoorUnder Left A Pillar
C361 (29 Pin, White)Floor - Front Right DoorUnder Right A Pillar
G204FloorUnder Right A Pillar

b. CONNECTOR IDENTIFICATION SYMBOL & PIN NUMBER POSITION

S6B1P052.png
Display graphicTranslations of text in graphics


c. POSITION OF CONNECTORS AND GROUNDS

S6B12001.png
Display graphicTranslations of text in graphics


S6B12003.png
Display graphicTranslations of text in graphics


S6B12005.png
Display graphicTranslations of text in graphics


2) FRONT & REAR POWER WINDOW CIRCUIT

S6B15053.png
Display graphicTranslations of text in graphics


a. CONNECTOR INFORMATION

CONNECTOR NO
(PIN NO, COLOR)
CONNECTING WIRING HARNESSCONNECTOR POSITION
C102 (32 Pin, Gray)Front - Engine Fuse BlockEngine Fuse Block
C203 (18 Pin, White)I.P - I.P Fuse BlockI.P Fuse Block
C208 (20 Pin, Yellow)Front - I.PFront TCM
C211 (15 Pin, Yellow)Front - FloorUnder Left A Pillar
C351 (29 Pin, White)Floor - Front Left DoorUnder Left A Pillar
C361 (29 Pin, White)Floor - Front Right DoorUnder Right A Pillar
C371 (6 Pin, White)Floor - Rear Left DoorUnder Left B Pillar
C381 (6 Pin, White)Floor - Rear Right DoorUnder Right B Pillar
G204FloorUnder Right A Pillar

b. CONNECTOR IDENTIFICATION SYMBOL & PIN NUMBER POSITION

S6B1P053.png
Display graphicTranslations of text in graphics


c. POSITION OF CONNECTORS AND GROUNDS

S6B12001.png
Display graphicTranslations of text in graphics


S6B12003.png
Display graphicTranslations of text in graphics


S6B12005.png
Display graphicTranslations of text in graphics


S6B12006.png
Display graphicTranslations of text in graphics


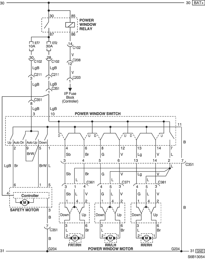
3) SAFETY POWER WINDOW CIRCUIT

S6B15054.png
Display graphicTranslations of text in graphics


a. CONNECTOR INFORMATION

CONNECTOR NO
(PIN NO, COLOR)
CONNECTING WIRING HARNESSCONNECTOR POSITION
C102 (32 Pin, Gray)Front - Engine Fuse BlockEngine Fuse Block
C203 (18 Pin, White)I.P - I.P Fuse BlockI.P Fuse Block
C208 (20 Pin, Yellow)Front - I.PFront TCM
C211 (15 Pin, Yellow)Front - FloorUnder Left A Pillar
C351 (29 Pin, White)Floor - Front Left DoorUnder Left A Pillar
C361 (29 Pin, White)Floor - Front Right DoorUnder Right A Pillar
C371 (6 Pin, White)Floor - Rear Left DoorUnder Left B Pillar
C381 (6 Pin, White)Floor - Rear Right DoorUnder Right B Pillar
G204FloorUnder Right A Pillar

b. CONNECTOR IDENTIFICATION SYMBOL & PIN NUMBER POSITION

S6B1P054.png
Display graphicTranslations of text in graphics


c. POSITION OF CONNECTORS AND GROUNDS

S6B12001.png
Display graphicTranslations of text in graphics


S6B12003.png
Display graphicTranslations of text in graphics


S6B12005.png
Display graphicTranslations of text in graphics


S6B12006.png
Display graphicTranslations of text in graphics


To Previous PageTo Next Page


© Copyright Chevrolet Europe. All rights reserved